Search

Leave a Message

Thank you for your message. We will be in touch with you shortly.

Explore Our Properties

Property Description

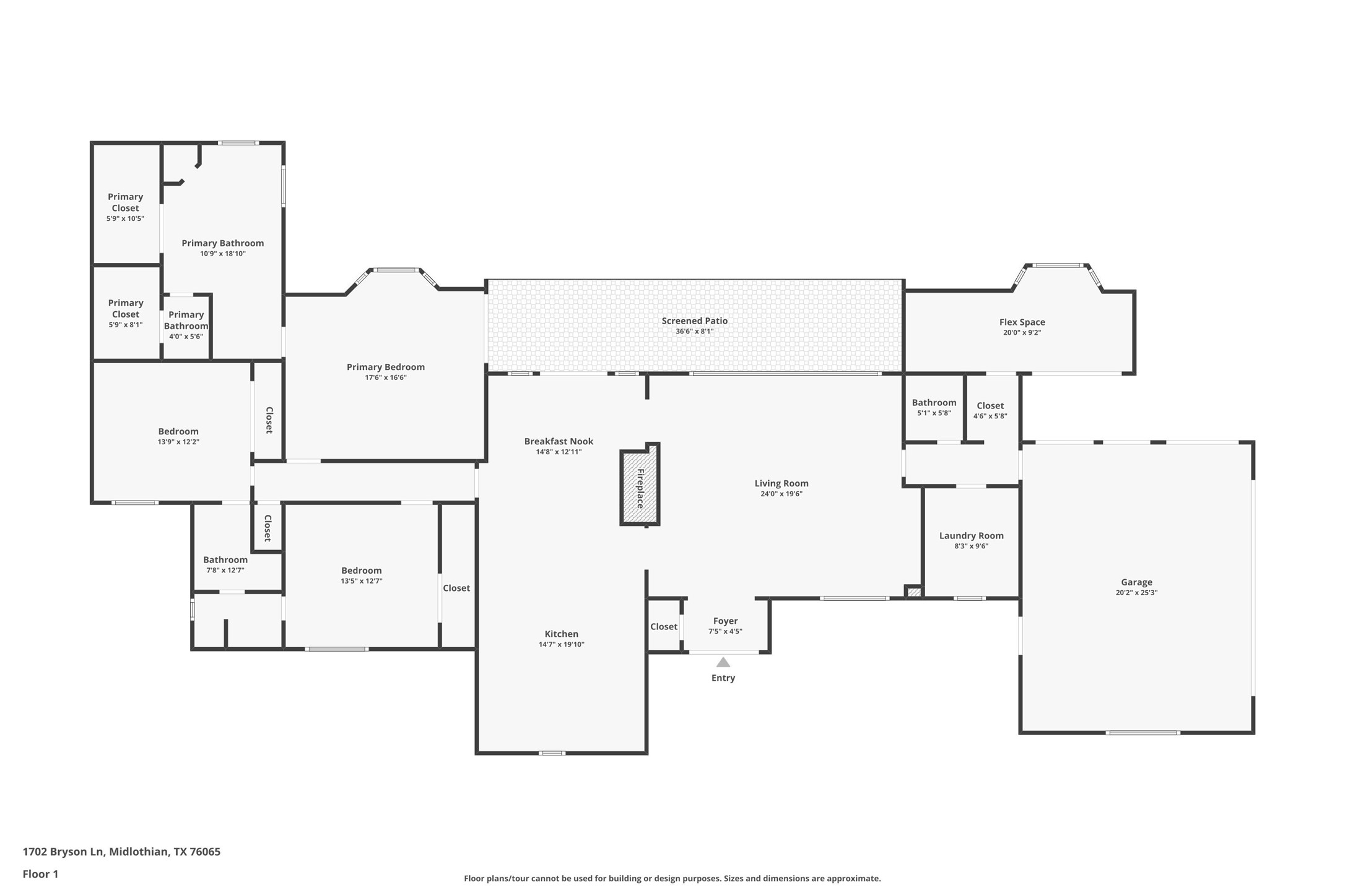
This 1 owner ranch style house is nearly 2,800 sq ft and is tucked away on a rare 4.26 acres OUTSIDE CITY LIMITS (NO CITY TAXES) in highly desired Midlothian ISD. Property offers a perfect blend of privacy, peaceful tranquility and convenience. It's just minutes away from the bustle of city life. Less than an hour from either Dallas or Fort Worth. As you walk into this home, you will be greeted by an impressive wall of Pella windows from the living room that showcase the beautiful backyard filled with trees and a pond. You will love all the natural light! Quality custom construction with high ceilings, large kitchen ideal for entertaining and 2 wood burning fireplaces. Primary suite overlooks the backyard, has access to the back patio and offers large dual closet spaces in primary bathroom. The laundry room is oversized with a sink and has ample storage. This single-story home features a dining room, 3 bedrooms, 2.5 bathrooms, 2 HVAC units, and an office that can be used as a flex space or additional bedroom. The backyard is an oasis, with plenty of room for a pool, outdoor kitchen, putting green or garden. Owner has repainted the entire interior, including the 2-car garage, additional attic access was added in the primary closet, new toilet in guest bath, foundation repairs and new water heater was installed. There's a private gravel driveway and small storage building perfect for your lawn mower and other equipment. Lots of space to bring your animals too! This is an exceptional property with unique features and endless possibilities to make it your own! Ask listing agent for video and backup information on updates.

Overview

Property Status
Sold
Lot Size
4.26 Acres
MLS ID
20867263
Property Type
Residential
Year Built
1985

Features & Amenities

Architecture Styles
Ranch, Traditional, Detached
Stories
1
Garage Spaces
2.0
Water Source
Public
Utilites
Electricity Available, Electricity Connected, Phone Available, Septic Available, Separate Meters, Water Available, Cable Available
Pool
None
Roof
Composition
Lot Features
Acreage, Back Yard, Lawn, Landscaped, Pasture, Pond on Lot, Sprinkler System, Few Trees
Parking
Additional Parking, Concrete, Covered, Carport, Detached Carport, Door-Single, Driveway, Garage, Garage Door Opener, Guest, On Site, Outside, RV Access/Parking, Garage Faces Side, Storage
Heat Type
Central, Electric, Fireplace(s), Heat Pump
Air Conditioning
Central Air, Ceiling Fan(s), Electric
Laundry Room
Washer Hookup, Electric Dryer Hookup, Laundry in Utility Room
Fireplace
Double Sided, Gas, Kitchen, Living Room, Masonry, Wood Burning
Appliances
Double Oven, Dishwasher, Electric Cooktop, Electric Oven, Electric Water Heater, Disposal, Refrigerator, Trash Compactor
Other Interior Features
Cedar Closet(s), Central Vacuum, Eat-in Kitchen, High Speed Internet, Kitchen Island, Pantry, Cable TV, Vaulted Ceiling(s), Walk-In Closet(s)
Sewer
Septic Tank
Substructure
Slab
Security Features
Smoke Detector(s)
Other Exterior Features
Storage
Elementary School
Longbranch
Middle School
Walnut Grove
High School
Heritage
School District
Midlothian ISD
Price Upon Request

Downloads

1702 Bryson Lane

Schedule a Tour

We would love to help you see this beautiful home! As a full-service brokerage, we can help you tour. Please submit an offer, and answer questions about the buying process.

Thank you

for your interest in 1702 Bryson Lane, Midlothian, TX 76065

1702 Bryson Lane
Navigate
1702 Bryson Lane
explore in 3d

1702 Bryson Lane

or

Follow Us On Instagram